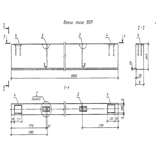
БОП 25 балки обвязочные

Чертеж изделия:
Характеристики изделия:
ПараметрЗначение
длина5950 мм
ширина250 мм
высота585 мм
масса1750 кг
нормативный документГОСТ 24893-81

БОП 25 Балки обвязочные прямоугольные ГОСТ 24893-81.