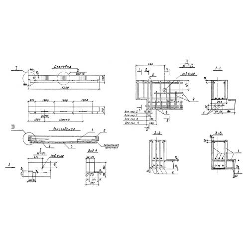
РОР 4.56

Чертеж изделия:
Характеристики изделия:
ПараметрЗначение
длина5560 мм
ширина375 мм
высота450 мм
масса1800 кг
нормативный документСерия 1.020-1

РОР 4.56  Ригели с одной полкой для ребристой плиты  Серия 1.020-1.