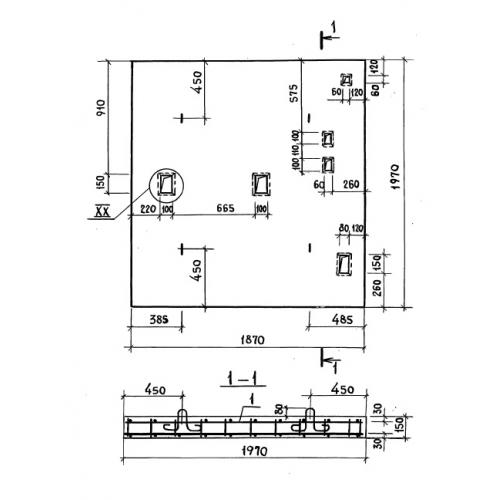
ПЛ 50-19
Характеристики изделия:
| Параметр | Значение |
|---|---|
| длина | 1870 мм |
| ширина | 1970 мм |
| высота | 150 мм |
| вес | 1400 кг |
| серия | 1.089.1-2 |
Цена:
Рассчитать стоимостьПЛ 50-19 Плиты перекрытия над шахтой пассажирского лифта по серии 1.089.1-2.
| Параметр | Значение |
|---|---|
| длина | 1870 мм |
| ширина | 1970 мм |
| высота | 150 мм |
| вес | 1400 кг |
| серия | 1.089.1-2 |
ПЛ 50-19 Плиты перекрытия над шахтой пассажирского лифта по серии 1.089.1-2.
