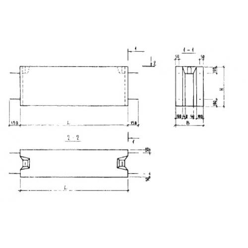
ФБ 12.5.6

Чертеж изделия:
Характеристики изделия:
ПараметрЗначение
длина1180 мм
ширина500 мм
высота580 мм
вес900 кг
серия1.110.1-1п

ФБ 12.5.6 Фундаментный блок по серии 1.110.1-1п.