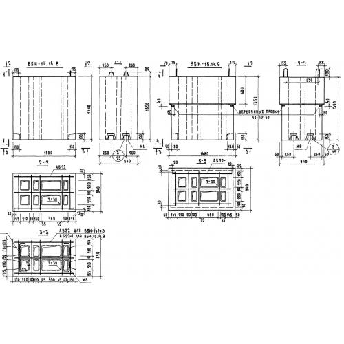
ВБН 15.14.9

Чертеж изделия:
Характеристики изделия:
ПараметрЗначение
длина1480 мм
ширина940 мм
высота1350 мм
вес1630 кг
серия1.134-3

ВБН 15.14.9 Наружные вентиляционные блоки по серии 1.134-3.