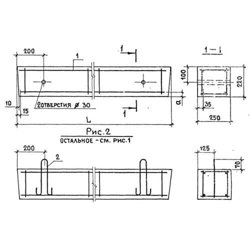
1ПР 27

Чертеж изделия:
Характеристики изделия:
ПараметрЗначение
длина2720 мм
ширина250 мм
высота220 мм
вес375 кг
серия1.138-10

1ПР 27 Перемычки брусковые по серии 1.138-10.