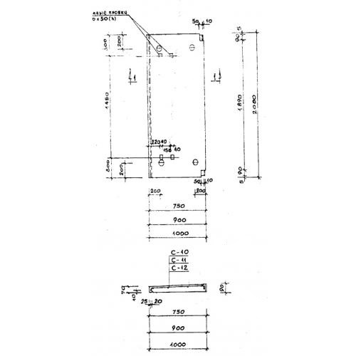
АК 21.9 плиты карнизные

Чертеж изделия:
Характеристики изделия:
ПараметрЗначение
длина2080 мм
ширина900 мм
высота90 мм
масса375 кг
нормативный документСерия 1.138-3

АК 21.9  Плиты карнизные  Серия 1.138-3.