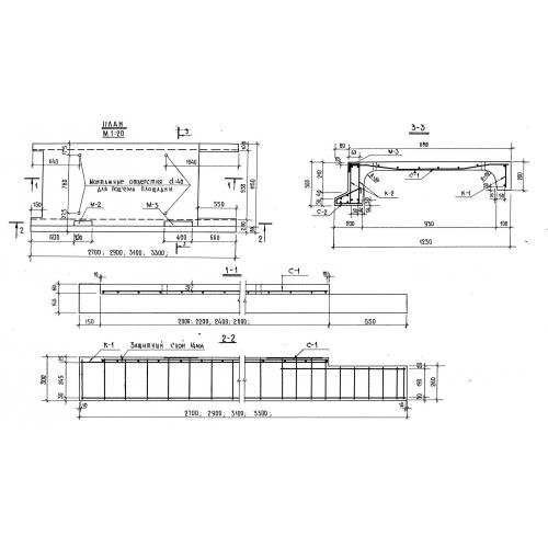
ЛП 300

Чертеж изделия:
Характеристики изделия:
ПараметрЗначение
длина3300 мм
ширина1150 мм
высота300 мм
вес1015 кг
серия1.150 КР-1

ЛП 300 Лестничные площадки по серии 1.150 КР-1.