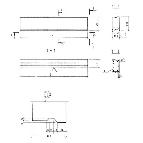
П 48.6.35
Характеристики изделия:
| Параметр | Значение |
|---|---|
| длина | 4770 мм |
| ширина | 590 мм |
| высота | 350 мм |
| вес | 700 кг |
| серия | 1.165.1-10 |
Цена:
Рассчитать стоимостьП 48.6.35 Панели покрытия по серии 1.165.1-10.
| Параметр | Значение |
|---|---|
| длина | 4770 мм |
| ширина | 590 мм |
| высота | 350 мм |
| вес | 700 кг |
| серия | 1.165.1-10 |
П 48.6.35 Панели покрытия по серии 1.165.1-10.
