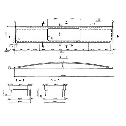
3КЖС 18

Чертеж изделия:
Характеристики изделия:
ПараметрЗначение
длина17960 мм
ширина2980 мм
высота1050 мм
вес10100 кг
серия1.465.1-14

3КЖС 18 Крупноразмерные железобетонные сводчатые плиты по серии 1.465.1-14.