3ПБ 78-12

Чертеж изделия:
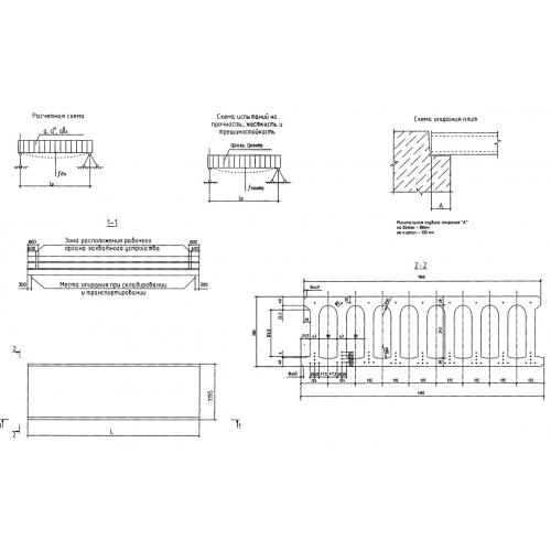
Характеристики изделия:
ПараметрЗначение
длина7780 мм
ширина1195 мм
высота300 мм
вес3450 кг
серия164/07-ПР-КЖ

3ПБ 78-12 Плита перекрытия многопустотная, выполненная методом непрерывного формования по серии 164/07-ПР-КЖ.