ЛК 75.240.120 лотки

Чертеж изделия:
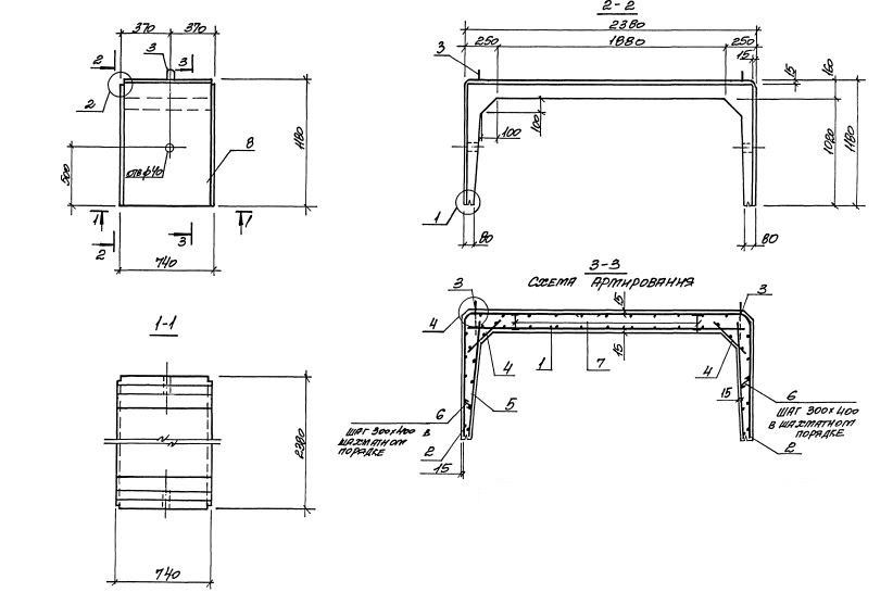
Характеристики изделия:
ПараметрЗначение
длина740 мм
ширина2380 мм
высота1180 мм
масса1180 кг
нормативный документСерия 3.006.1-8

ЛК 75.240.120  Лотки каналов Серия 3.006.1-8.