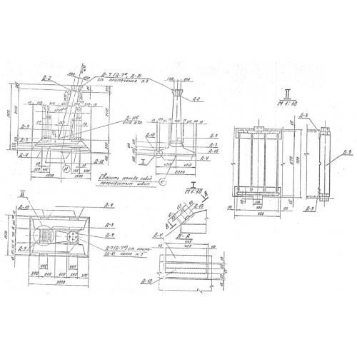
Ф 6 Фундаменты под анкерно-угловых опор

Чертеж изделия:
Характеристики изделия:
ПараметрЗначение
длина3000 мм
ширина2020 мм
высота3115 мм
масса6750 кг
нормативный документСерия 3.407-115

Ф 6 Фундаменты под анкерно-угловые опоры Серия 3.407-115.