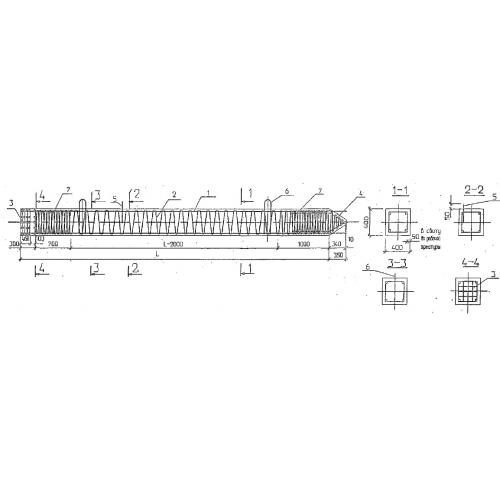
С 14-40Т4

Чертеж изделия:
Характеристики изделия:
ПараметрЗначение
длина14000 мм
ширина400 мм
высота400 мм
масса5700 кг
нормативный документСерия 3.500.1-1.93

С14-40Т4  Сваи мостовые по Серии 3.500.1-1.93.