СТ 270.4
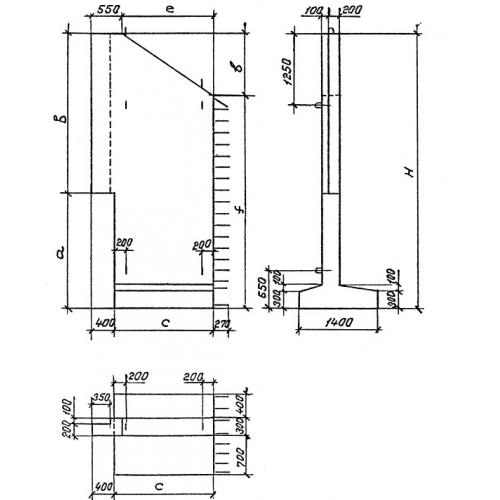
Характеристики изделия:
| Параметр | Значение |
|---|---|
| длина | 1320 мм |
| ширина | 1400 мм |
| высота | 6250 мм |
| масса | 5500 кг |
| нормативный документ | Серия 3.501.1-126 |
Цена:
Рассчитать стоимостьСТ 270.4 Блоки откосных стенок Серия 3.501.1-126.
| Параметр | Значение |
|---|---|
| длина | 1320 мм |
| ширина | 1400 мм |
| высота | 6250 мм |
| масса | 5500 кг |
| нормативный документ | Серия 3.501.1-126 |
СТ 270.4 Блоки откосных стенок Серия 3.501.1-126.
