Р

Чертеж изделия:
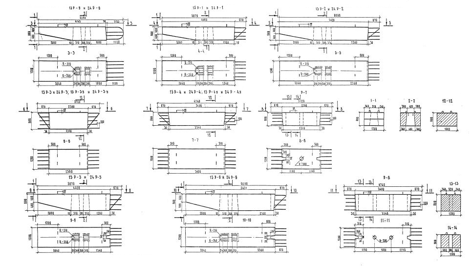
Характеристики изделия:
ПараметрЗначение
длина4740 мм
ширина1200 мм
высота800 мм
масса8100 мм
нормативный документСерия 3.503-23

Р  Блоки ригеля Серия 3.503-23.