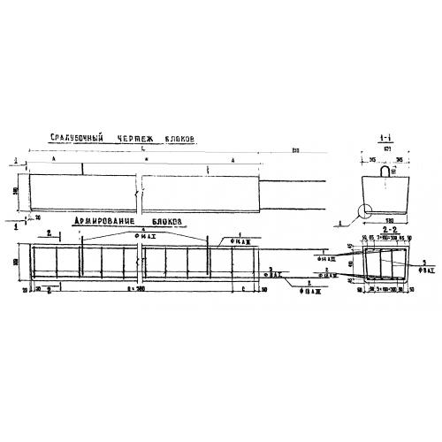
Л-1

Чертеж изделия:
Характеристики изделия:
ПараметрЗначение
длина4150 мм
ширина630 мм
высота610 мм
вес2500 кг
серия3.503-41

Л-1 Лежни железобетонные по серии 3.503-41.