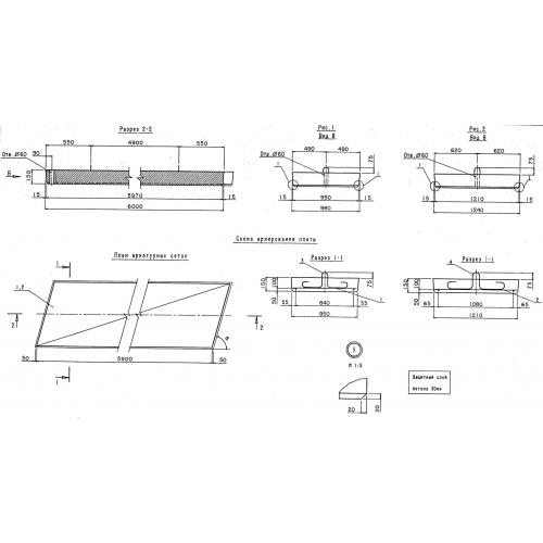
ПК 600.98.15 Плиты переходные косые

Чертеж изделия:
Характеристики изделия:
ПараметрЗначение
длина6000 мм
ширина980 мм
высота150 мм
вес2150 кг
нормативный документСерия 3.503.1-96

ПК 600.98.15 Плиты переходные косые по Серии 3.503.1-96.