П 6.3-1
Характеристики изделия:
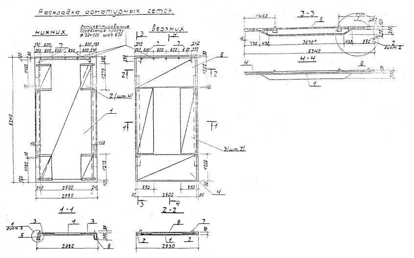
| Параметр | Значение |
|---|---|
| Длина | 6240 мм |
| Ширина | 2980 мм |
| Высота | 350 мм |
| Масса | 5400 кг |
| Нормативный документ | Серия 3.702.1-4 |
Цена:
Рассчитать стоимостьП 6.3-1 Плита надсилосная по Серии 3.702.1-4.
| Параметр | Значение |
|---|---|
| Длина | 6240 мм |
| Ширина | 2980 мм |
| Высота | 350 мм |
| Масса | 5400 кг |
| Нормативный документ | Серия 3.702.1-4 |
П 6.3-1 Плита надсилосная по Серии 3.702.1-4.