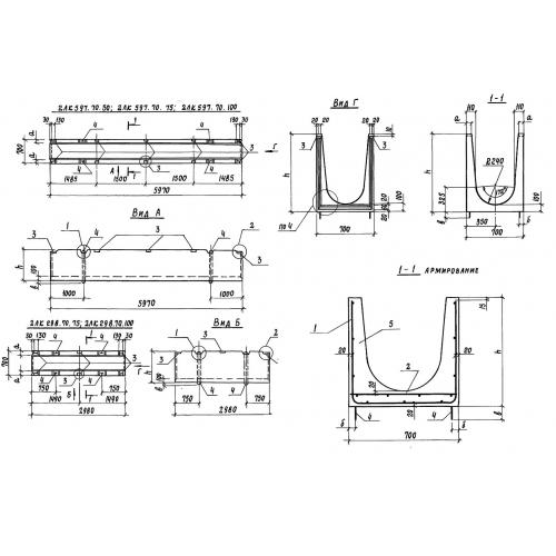
ЛК 597.70.100

Чертеж изделия:
Характеристики изделия:
ПараметрЗначение
длина5970 мм
ширина700 мм
высота1000 мм
вес3880 кг
серия3.818.9-2

ЛК 597.70.100 Лотки для каналов навозоудаления по серии 3.818.9-2.