ОПО-8

Чертеж изделия:
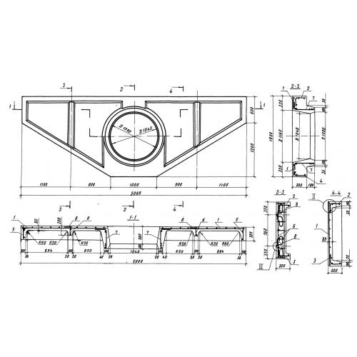
Характеристики изделия:
ПараметрЗначение
длина5000 мм
ширина1800 мм
высота480 мм
масса2800 кг
нормативный документСерия 3.820-6.

ОПО-8  Оголовки портальные облегченные по Серии 3.820-6.