П 29

Чертеж изделия:
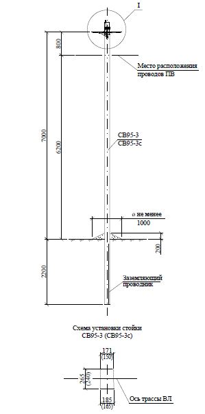
Характеристики изделия:
ПараметрЗначение
длина9200 мм
ширина185 мм
высота265 мм
масса900 кг
нормативный документШифр 26.0085

П 29   Промежуточные одноцепные опоры  Шифр 26.0085.