ПЭ 54.12

Чертеж изделия:
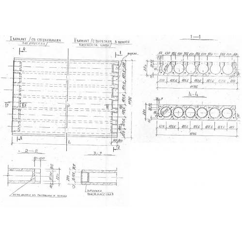
Характеристики изделия:
ПараметрЗначение
длина5380 мм
ширина1196 мм
высота220 мм
вес1850 кг
ШифрСК 1223

ПЭ 54.12 Плиты многопустотные безопалубочного формования по Шифру СК 1223.