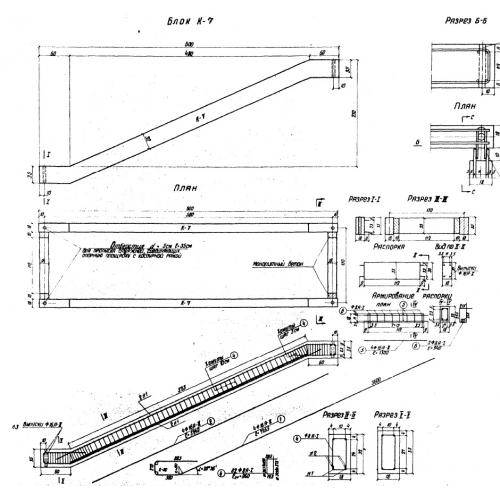
К 7

Чертеж изделия:
Характеристики изделия:
ПараметрЗначение
длина6000 мм
ширина180 мм
высота2450 мм
масса1000 кг
нормативный документТП 501-166

К 7  Косоуры по Типовому проекту ТП 501-166.