П 12.17

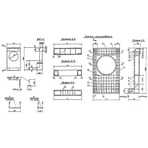
Чертеж изделия:
Характеристики изделия:
ПараметрЗначение
длина2930 мм
ширина1700 мм
высота680 мм
масса3780 кг
нормативный документТП 503-7-015.90

П 12.17  Портальные стенки по Типовому проекту ТП 503-7-015.90.