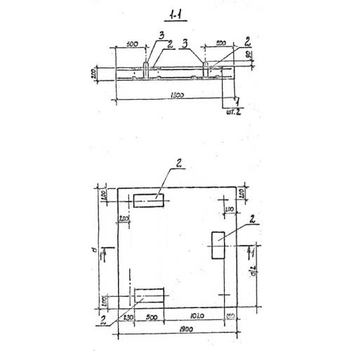
П-4

Чертеж изделия:
Характеристики изделия:
ПараметрЗначение
длина1900 мм
ширина2600 мм
высота290 мм
вес2500 кг
серияТП 901-1-60.86

П-4 Плиты для затопленных водоприемников по проекту ТП 901-1-60.86.