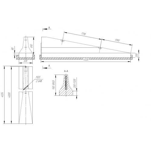
12 ДД

Чертеж изделия:
Характеристики изделия:
ПараметрЗначение
длина4000 мм
ширина610 мм
высота850 мм
масса2700 кг
нормативный документТУ 5899-002-61548960-2010

12 ДД  Концевые блоки парапетного двухстороннего стационарного ограждения по ТУ 5899-002-61548960-2010.