12 ДД

Чертеж изделия:
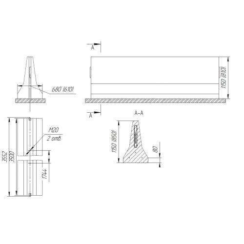
Характеристики изделия:
ПараметрЗначение
длина3552 мм
ширина610 мм
высота810 мм
масса4000 кг
нормативный документТУ 5899-002-61548960-2010

12 ДД  Блоки парапетного двухстороннего стационарного ограждения по ТУ 5899-002-61548960-2010.