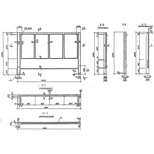
1ПБ 40.20

Чертеж изделия:
Характеристики изделия:
ПараметрЗначение
длина4000 мм
ширина160 мм
высота2000 мм
масса1700 кг
нормативный документТУ 5899-004-04678590-2011

1ПБ 40.20 Панели ограждений по ТУ 5899-004-04678590-2011.